New in Old City | 4,700 Sq Ft Gallery-Scale Loft Living

An art collector’s dream in the heart of Old City, the penthouse at 33 North 3rd Street offers a rare opportunity to own a true 19th-century warehouse reimagined for modern living at an extraordinary scale, complete with a private roof deck spanning over 1,400 square feet.

Originally constructed in 1853 and later used as a wool warehouse and leather tannery, the building’s industrial purpose is not just a detail, it is the defining feature of the home. The soaring ceilings, expansive walls, and dramatic proportions were built for storage and commerce, and today create a setting that feels purpose-built for a serious art collection or a buyer who values space, presence, and originality.

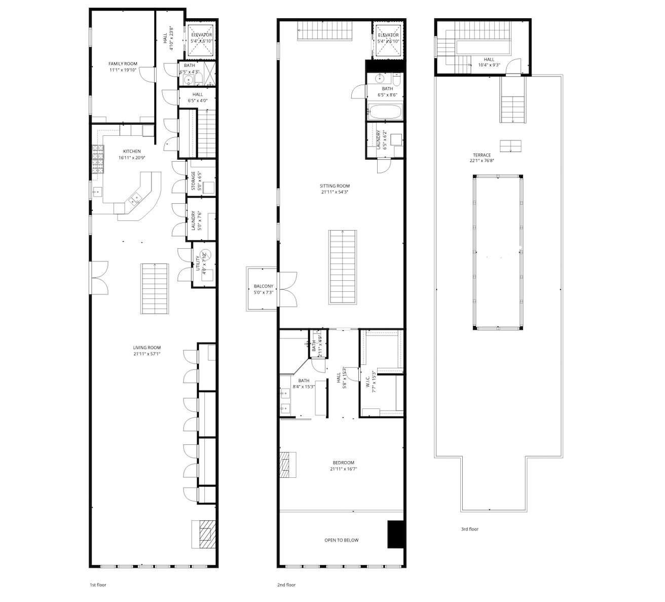
Spanning over 4,700 square feet across two levels, this two-bedroom, three-bath penthouse delivers a living experience that is almost impossible to replicate in Philadelphia. The scale is immediate and striking, anchored by a stunning glass atrium at the upper level that fills the home with natural light while thoughtfully preserving wall space below, an architectural feature that is as functional as it is visually dramatic.

The layout remains highly functional, with private elevator access via secure code to both floors, offering ease of living and flexibility for a range of lifestyles. The second level presents additional opportunities for customization, whether as expanded living space, workspace, or potential additional sleeping quarters.

What sets this home apart is its authenticity. Nothing here is artificial or forced. The architecture is real, the proportions are intentional, and the character has been earned over time. It is a space that carries a distinct energy, one that resonates immediately with the right buyer.

The primary suite offers a quieter, more refined counterpoint to the dramatic main living spaces, featuring a spacious walk-in closet, a well-appointed laundry area, and a spa-like bath complete with a steam shower. Along the main level, extensive built-in storage runs nearly the full length of the home, a rare and highly practical complement to the open loft design.

A true extension of the home, the private roof deck spans over 1,400 square feet and delivers sweeping 270-degree views of the Philadelphia skyline. It is a rare outdoor space of this scale, offering endless potential for entertaining, relaxing, or creating a one-of-a-kind urban retreat.

There is a true downtown loft sensibility throughout, reminiscent of New York’s most compelling conversions, yet with a level of square footage and value that is increasingly rare. Positioned at the top of a historic Old City building, the penthouse offers both presence and privacy, surrounded by some of Philadelphia’s best architecture, galleries, and restaurants. For added convenience, the seller is offering two years of two-car parking located directly adjacent to the building with an acceptable offer.

This is not a typical condominium, and it is not meant to be. For the buyer who has outgrown the expected and is searching for something with scale, soul, and lasting impact, this penthouse stands in a category of its own.

James 'Right' Price